NE板鏈斗式提升機說明書
NE板鏈斗式提升機
NE板鏈斗式提升機|NE15、NE30、NE50斗式提升機|NE100、NE150、NE200、NE300斗式提升機|NE400、NE500、NE600、NE800斗式提升機
NE板鏈斗式提升機產品概述:
NE斗式提升機適用于粉狀物料到大塊狀等各種物料的垂直提升,它采用流入式喂料替代傳統斗式提升機的掏取式喂料,是傳統斗式提升機的換代產品。NE系列板鏈式提升機共有11種型號:NE15、NE30、NE50、NE150、NE200、NE300、NE400、NE500、NE600、NE800。
NE型斗式提升機為板鏈式、重力誘導卸料的提升設備。適用于垂直輸送粉狀、顆粒狀、小塊狀磨琢性或無磨琢性物料,如生料、水泥、煤、石灰石、干粘土、熟料等。
NE型斗式提升機是引進國外先進技術而研制的新型提升產品;NE板鏈斗式提升機應用于各工業國家,由于節能高效,NE型板鏈斗式提升機正在逐步替代HL型等環鏈式提升機。NE型板鏈斗式提升機為流入式喂料,物料流入料斗內靠板鏈提升到頂端,在物料重力作用下自行卸料。主要技術參數符合機械部標準(JB3926-85)。NE斗提機采用自流式裝料,重力式卸料。鏈條是優質合金鋼高強度板式鏈條耐磨而可靠。驅動部分采用硬齒面減速器。該提升機適用于中、大塊和有磨琢性的物料(如石灰石、水泥熟料、石膏、塊煤)的垂直輸送,物料溫度控制在250℃以下。
NE板鏈斗式提升機特點
1、提升范圍廣。這類提升機對物料的種類、特性及塊度的要求少。不僅能提升一般粉狀、粒狀和塊狀物料,而且可提升磨琢性大的物料。物料溫度≤250度。2、輸送能力大。該系列提升機具有NE15~NE800多種規格。提升量范圍為15~800m3/h。 3、驅動功率小。這類提升機采取流入式喂料,重力誘導式卸料,且采用密集型布置的大容量料斗輸送,鏈速低提升量大。物料提升時,幾乎無回料和挖料現象,因此無效功率少,所耗功率是環鏈斗式提升機的70%。
4、使用壽命長。提升機的喂料采取流入式,無需用斗挖料,材料之間很少發生擠壓和碰撞現象,本機的設計保證物料在喂料、提升和卸料中不會撒料,減少了機械磨損,輸送鏈采用板鏈式高強度耐磨鏈條,大大延長了使用壽命。正常使用下,輸送鏈使用壽命超過5年。
5、提升高度高。該系列提升機鏈速低,運行平穩,且采用用板鏈式高強度耐磨合金鋼鏈條,因此可達較高的提升高度(高度40M)。
6、密封性好。環金污染少。
7、運行可靠性好。先進的設計原理,保證了整機運行的可靠性,無故障時間超過了3萬小時。
8、操作、維修方便、易損件少。
9、機械尺寸小。與同等提升量的其它各種斗式提升機相比,這種提升機的機械尺寸較小。
10、結構港型號,精度高。機殼經折邊和中間壓筋,再經焊接,剛性好、外觀漂亮。
11、使用成本低。由于節能和維修少,使用成本極低。

NE板鏈斗式提升機工作原理:
NE斗式提升機系流入式喂料,物料流入料斗內靠板鏈提升到頂端,在物料重力作用下自行卸料。本系列提升機規格多(NE15~NE800共11種)提升量廣;且生產能高,能耗較低,該機采用全封式機殼鏈速低,幾乎無回料現象,因此無功功率損耗少,噪聲低,壽命長。NE板鏈斗式提升機主要結構:
NE板鏈斗式提升機由運行部件、驅動裝置、上部裝置、中部機殼、下部裝置組成。運行部件---由料斗和專用板式鏈條組成,NE30以及下采用單排鏈,NE50--NE800采用雙排鏈。
驅動裝置---采用多種驅動組合驅動,(依用戶實際需要而定)。驅動平臺上裝有檢修架和欄桿。
分左裝和右裝兩種
左裝:面對喂料口,驅動裝置布置在機殼左側。
右裝:面對喂料口,驅動裝置布置在機殼右側。
上部裝置---安裝有軌道(雙排鏈)、逆止器、卸料口裝有防回料橡膠板。
中間節---部分中間節裝有軌道(雙鏈),以防止鏈條工作中擺動。
下部裝置---安裝有自動張緊裝置。
NE斗式提升機主要工作部件特點:
1、上部裝置:安裝有軌道(雙排道),防止鏈條擺動,逆止器,防止料斗回轉,物料阻滿下部機殼,卸料口裝有橡膠板防止回料。2、中間節:部分中間節裝有軌道(雙排節)以防止鏈條工作中擺動,部分中間節裝有檢修門以便維修。
3、下部裝置:安裝有張緊裝置, NE15~NE50采用彈簧張緊,NE100~NE800采用重錘箱張緊。
4、上下鏈輪采用 ZG310-570。整體調質,HB229-269齒面淬火HRC40~48。
5、板鏈:鏈板采用 45 # HRC36~42 。
a、采用的板鏈有較高的剪切強度、疲勞強度及耐磨性能,運轉故障率低,使用壽命長;b 、采用較低的鏈速度(o.5米/秒);c、 采用大容量的料斗和較小的斗距,驅動功率低且輸送量大。尤為適應提升破碎后的石灰石和水泥熟料(≥NE50)。
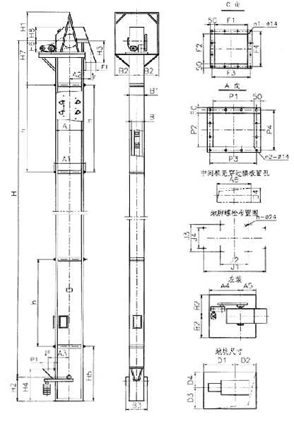
NE斗式提升機外形示意圖

NE板鏈斗式提升機技術參數表
| NE斗式提升機型號 |
提升量
平方米/小時
|
物料最大塊度
|
||||
| 占百分比 % | ||||||
| 10 | 25 | 50 | 75 | 100 | ||
|
NE15斗式提升機
|
15 | 65 | 50 | 40 | 30 | 25 |
|
NE30斗式提升機
|
32 | 60 | 75 | 58 | 47 | 40 |
|
NE50斗式提升機
|
60 | 90 | 75 | 58 | 47 | 40 |
|
NE100斗式提升機
|
110
|
130 | 105 | 80 | 65 | 55 |
|
NE150斗式提升機
|
170
|
130
|
105
|
80 | 65 | 55 |
|
NE200斗式提升機
|
210
|
170 |
135
|
100 | 85 | 70 |
|
NE300斗式提升機
|
320
|
170 |
135
|
100 |
85
|
70 |
|
NE400斗式提升機
|
380
|
205
|
165
|
125 | 105 | 90 |
|
NE500斗式提升機
|
470
|
240
|
190
|
145
|
120
|
100
|
|
NE600斗式提升機
|
600
|
240
|
190
|
145
|
120
|
100
|
|
NE800斗式提升機
|
800
|
275
|
220
|
165
|
135
|
110
|
NE板鏈斗式提升機外形及基礎安裝尺寸表
|
型號
|
NE15
|
NE30
|
NE50
|
NE100
|
NE150
|
NE200
|
NE300
|
NE400
|
NE500
|
NE600
|
NE800
|
|
|
機殼形式
|
I
|
I
|
I
|
I
|
I
|
II
|
II
|
II
|
II
|
II
|
II
|
|
|
上機殼
|
H1
|
523
|
840
|
665
|
741
|
766
|
968
|
968
|
1168
|
1300
|
1300
|
1450
|
|
H2
|
1342
|
2265
|
1880
|
2000
|
1700
|
1780
|
1780
|
2030
|
3000
|
3000
|
3000
|
|
|
卸料口
|
D1
|
900
|
955
|
1100
|
1475
|
1300
|
1650
|
1650
|
1900
|
2200
|
2200
|
2500
|
|
D2
|
800
|
1000
|
1000
|
1200
|
1200
|
1500
|
1500
|
1750
|
1950
|
1950
|
2200
|
|
|
D3
|
250
|
300
|
350
|
350
|
400
|
550
|
550
|
600
|
700
|
700
|
850
|
|
|
D4
|
300
|
350
|
400
|
500
|
650
|
650
|
950
|
1000
|
1050
|
1300
|
1500
|
|
|
d1
|
306/3
|
356/3
|
406/3
|
406/3
|
456/3
|
606/4
|
606/4
|
670/4
|
756/5
|
756/5
|
906/6
|
|
|
d2
|
356/3
|
406/3
|
456/3
|
556/4
|
706/5
|
706/5
|
1006/7
|
1070/7
|
1106/7
|
1356/9
|
1556/6
|
|
|
平臺
|
p1
|
1000
|
602
|
777
|
803
|
1200
|
1280
|
1280
|
1530
|
1500
|
1500
|
1500
|
|
p2
|
104
|
104
|
104
|
130
|
130
|
144
|
144
|
144
|
160
|
160
|
180
|
|
|
p3
|
1404
|
2403
|
1827
|
1740
|
1740
|
1864
|
1864
|
2114
|
3200
|
3200
|
3600
|
|
|
p4
|
521
|
620
|
616
|
729
|
720
|
870
|
870
|
1080
|
1310
|
1310
|
1500
|
|
|
p5
|
1579
|
2041
|
2236
|
2380
|
23800
|
2730
|
2730
|
2930
|
3200
|
3200
|
3600
|
|
|
p6
|
2300
|
2500
|
2500
|
2600
|
3300
|
4100
|
4100
|
4100
|
4500
|
4800
|
5300
|
|
|
中間機殼
|
M1
|
1050
|
1240
|
1240
|
1450
|
1450
|
1750
|
1750
|
2150
|
2450
|
2450
|
2800
|
|
M2
|
1156
|
1340
|
1348
|
1598
|
1582
|
1888
|
1888
|
2290
|
2600
|
2600
|
2950
|
|
|
M3
|
450
|
500
|
650
|
800
|
1060
|
1120
|
1420
|
1445
|
1535
|
1800
|
2050
|
|
|
M4
|
556
|
600
|
780
|
948
|
1196
|
1280
|
1580
|
1585
|
1685
|
1950
|
2200
|
|
|
M5
|
1250
|
1440
|
1440
|
1680
|
1680
|
1980
|
1980
|
2400
|
2710
|
2710
|
3060
|
|
|
M6
|
650
|
700
|
850
|
1030
|
1290
|
1350
|
1650
|
1700
|
1700
|
2060
|
2310
|
|
|
喂料口
|
R1
|
800
|
970
|
970
|
1125
|
1075
|
1300
|
1300
|
1550
|
1775
|
1775
|
2000
|
|
R2
|
250
|
300
|
280
|
400
|
500
|
550
|
550
|
650
|
700
|
700
|
800
|
|
|
R3
|
250
|
300
|
300
|
400
|
600
|
560
|
860
|
850
|
950
|
1200
|
1400
|
|
|
R4
|
1350
|
1650
|
1700
|
2000
|
2050
|
2400
|
2400
|
2900
|
3300
|
3350
|
3750
|
|
|
r1
|
306/3
|
356/3
|
336/3
|
456/3
|
556/4
|
620/4
|
620/4
|
720/5
|
770/5
|
770/5
|
670/6
|
|
|
r2
|
306/3
|
356/3
|
356/3
|
456/3
|
656/5
|
630/4
|
930/6
|
920/6
|
1020/7
|
1270/8
|
1410/10
|
|
|
下機殼
|
B1
|
600
|
750
|
750
|
850
|
900
|
1050
|
1050
|
1400
|
1550
|
1600
|
1800
|
|
B2
|
2440
|
2440
|
2500
|
2500
|
2500
|
3000
|
3000
|
3000
|
3500
|
3500
|
4000
|
|
|
B3
|
830
|
970
|
996
|
1148
|
1632
|
2102
|
2102
|
2131
|
2160
|
2440
|
2700
|
|
|
基礎尺寸
|
Z1
|
1000
|
1200
|
1200
|
1400
|
1400
|
1670
|
1670
|
1970
|
2220
|
2220
|
2500
|
|
Z2
|
1400
|
1500
|
1500
|
1700
|
1700
|
1850
|
1850
|
2150
|
2300
|
2300
|
2500
|
|
|
Z3
|
950
|
1000
|
1100
|
1200
|
1350
|
1350
|
1550
|
1600
|
1650
|
1800
|
2000
|
|
|
Z4
|
1300
|
1400
|
1700
|
1900
|
2350
|
2350
|
2900
|
2950
|
3100
|
3500
|
4100
|
|
|
Z5
|
554
|
594
|
744
|
916
|
1176
|
1250
|
1550
|
1565
|
1662
|
1926
|
2175
|
|
|
Z6
|
400/1
|
450/1
|
550/1
|
600/1
|
400/1
|
800/1
|
750/1
|
720/1
|
1662
|
Mar-26
|
Mar-75
|
|
|
Z7
|
1144
|
1334
|
1334
|
1566
|
1566
|
1880
|
1880
|
2270
|
2576
|
2376
|
2920
|
|
|
Z8
|
500/1
|
600/1
|
600/1
|
700/1
|
700/1
|
940/2
|
940/2
|
720/1
|
2576
|
Apr-73
|
Apr-20
|
|
卓力工礦是國內知名NE板鏈斗式提升機生產廠家,有豐富的經驗為客戶提供高品質的NE板鏈斗式提升機及完善的售后服務,如果您想了解最新NE板鏈斗式提升機價格或者更詳細信息,歡迎撥打服務熱線:
13280082001 18605374511.或者聯系在線客服:
點擊這里、立刻咨詢;我們攜程為您服務!
常見問題:NE板鏈斗式提升機發貨時間? NE板鏈斗式提升機售后保障? NE板鏈斗式提升機訂貨需要提供什么信息?
上一篇:TD,D皮帶式斗式提升機
下一篇:TB板鏈斗式提升機

鐵路設備
運轉設備
鉆采設備
噴漿支護
提升設備
防爆電器
礦用電氣
通防設備
救援設備
化工設備
路面建筑
園林機械
節能環保設備
水利機械
泵類
電機




















